Квартал, продолжающий историю города
Жилой комплекс Михалевич располагается на одной из центральных улиц города, названной в память о Михаиле Леонтьевиче Михалевиче — одной из ключевых фигур индустриального расцвета Раменского. Он более 15 лет стоял у руля Раменского приборостроительного завода и сыграл значимую роль в развитии города.
Новый жилой квартал вдохновлен историей Раменского и идеей развития — осмысленного, эстетичного, технологичного.
Там, где соседей знают по имени, а во дворе уютно в любое время года. В центре внимания — не просто дом, а образ жизни.
Архитектура
01
14

Особенности проекта
Входные группы
Лобби дизайнерского формата продуманы от входа до подземного уровня.
Безбарьерная среда, входы без ступеней
Спуск на -1 этаж на современном лифте
Колясочные, гостевые санузлы, кладовые
Мойки для лап домашних питомцев
Сквозные проходы через подъезды
01
08Центральное лобби
В каждом доме – одно центральное лобби, где располагаются камин, библиотека, зоны для работы и отдыха.
Это пространство для сосредоточенной работы, тихого чтения и теплых встреч. Ваша точка притяжения, где рождаются идеи и завязываются знакомства.
Современное лобби нового формата – визитная карточка вашего дома.
01
05- 10мин.
до станции МЦД-3 «Ипподром»
- 5мин.
на машине до центрального парка и озера
- 45мин.
на экспрессе до м. Выхино
- 1,15час
на экспрессе до Казанского вокзала
- 30мин.
на машине до аэропорта Жуковский
- 3мин.
пешком до ближайшей автобусной остановки
Узнавайте первыми о новостях и акциях!
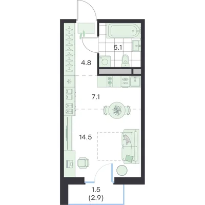
Выбор квартиры с чистовой отделкой прекрасно подойдет для тех, кто хочет сразу после покупки заехать в свою новую квартиру. Вам не придется ломать голову над дизайн-проектом, контролировать рабочих, а главное – вы сможете переехать сразу после получения ключей! Приятный бонус - не придется тратить дополнительные деньги на ремонт, стоимость отделки уже включена в стоимость квартиры.

Все включено
Переезд сразу после получения ключей
Готовое решение
Дизайн продуман профессионалами, вам остается купить только мебель
Качество
Отделка от застройщика выполняется из качественных проверенных материалов и опытными рабочими
Экономия
Выгода от экономии денег и времени
Контакты
- Ежедневно, с 9:00 до 21:00
Наши менеджеры ответят на все вопросы, расскажут о действующих акциях и помогут подобрать планировку по телефону.
Свяжитесь с нами!
Часто ищут






















































































































